
DRA-CADオプションコマンド
耐震補強部材
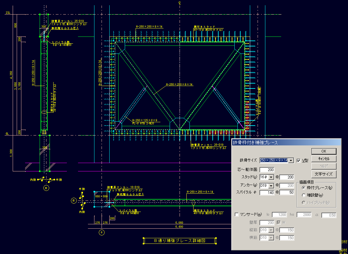
鉄骨枠付き補強ブレース及び増設壁詳細図描画コマンド
使用方法:
補強詳細図を描くための既存躯体図を用意した上で、コマンド起動。
・ダイアログで描画内容を選択し、
・躯体の対角2点で見付図を、
・続けて水平断面心指示で水平断面、
・垂直も同様となり、4点指示で詳細図が完成します。
適用範囲:
鉄骨枠付き補強ブレース(在来工法)
鉄骨サイズはH-175,200,250,300から選択。
山形及びV型ブレースに、開口寸法指定のマンサード型対応。
増設壁:壁厚と、縦筋・横筋はシングルかダブルが選択可。
イメージ:

動画参照(新しいタブで開きます)
購入方法:
オプションコマンド購入希望の旨をメールにて送信してください。
折り返し振り込み先等を連絡致します。
メールはこちらへ
販売価格:
\64,800.-(税込)
注意事項:
マニュアルはありません。上記説明を参照してください。
不具合や未対応部分については、描画後修正してください。
※ DRA-CAD 64bit版では動作しません ※